Version History

Type # Version Owner Created Size  
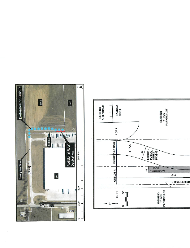
Version 1 Res. Adopted Accepting Dedication of Right-of-Way for the City to Accept the Public Street Improvements to an Extension of Sevig Street

Initial Version

chilger 08/01/16 01:17 PM 1356596