Version History

Type # Version Owner Created Size  
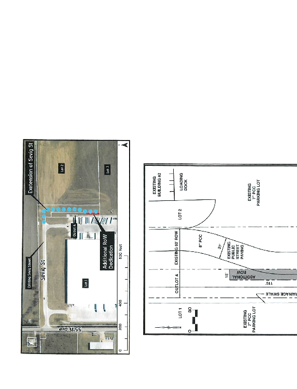
Version 1 Res. Adopted Accepting Dedication of Right-of-Way and Public Street Improvements to Extension of Sevig Street

Initial Version

chilger 04/15/16 03:13 PM 1500812